top of page

Create Your First Project
Start adding your projects to your portfolio. Click on "Manage Projects" to get started
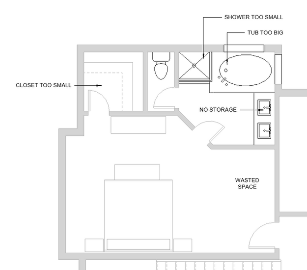
Primary Suite Remodel
A timeless primary en-suite featuring glass shower, double sinks, a spacious bathtub, and dual walk-in closets. Our design incorporated large existing windows to bring in natural light and create a bright, refreshing space.
bottom of page









